Apartment mit 3 betten und 2 bad in Algorfa, Alicante
Neue Bungalows in La Finca Golf, Algorfa - Luxus und Natur an der Costa Blanca
Exklusive Wohnanlage in einer GolfumgebungIn der prestigetrachtigen Anlage La Finca Golf in Algorfa gelegen, bietet diese neue Wohnanlage eine einmalige Gelegenheit, ein Zuhause im Herzen der Costa Blanca Sud zu genießen. Die Anlage wurde mit dem Ziel entworfen, Komfort, Exklusivitat und eine unvergleichliche Verbindung zur Natur zu bieten. Sie verfugt uber moderne Bungalows, die von weitlaufigen Grunflachen und einem spektakularen Gemeinschaftspool umgeben sind.
La Finca Golf ist eine privilegierte Enklave, die Ruhe und erstklassigen Service miteinander verbindet. Sie ist ideal fur alle, die einen entspannten Lebensstil suchen und gleichzeitig die wichtigsten Attraktionen der Region leicht erreichen mochten.
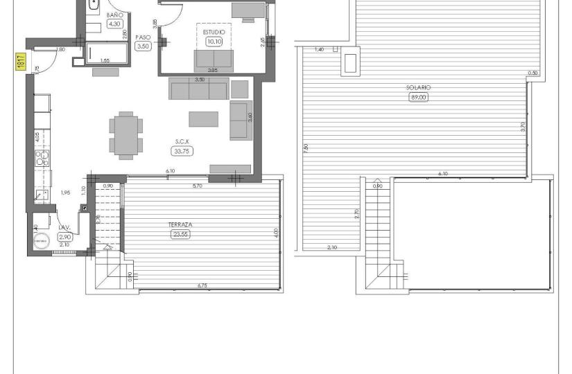
Modernes Design und WohnmoglichkeitenDie Anlage bietet Bungalows mit 2 und 3 Schlafzimmern, die in einem modernen Stil und mit hochwertigen Materialien entworfen wurden. Alle Hauser haben:
2 Vollbader.Offene Kuche, die in das Wohnzimmer integriert ist.Einbauschranke in allen Schlafzimmern.Elektrische Jalousien in den Schlafzimmern und im Wohnzimmer.Vollstandig installierte Kanal-Klimaanlage.
Aufteilungsmoglichkeiten:Erdgeschoss mit privatem Garten, ideal fur diejenigen, die mehr Platz im Freien suchen.Dachgeschoss mit privater Terrasse und Solarium, ideal um das mediterrane Klima und den Panoramablick zu genießen.Es besteht auch die Moglichkeit, einen Tiefgaragenstellplatz und einen Abstellraum zu einem Aufpreis zu erwerben.
Privilegierte Lage und gute VerkehrsanbindungDiese exklusive Wohnanlage befindet sich in La Finca Golf, Algorfa, in der wunderschonen Vega Baja. Die strategische Lage ermoglicht es Ihnen, die Ruhe des Golfsports zu genießen und gleichzeitig alle wichtigen Annehmlichkeiten in der Nahe zu haben.
Entfernungen zu den wichtigsten Punkten von Interesse:
Die Strande von Guardamar del Segura - 15 km (15 Minuten Fahrt).Flughafen Alicante - 35 km (35 Autominuten).Nahegelegene Stadte - Almoradi, Benijofar und Ciudad Quesada sind in wenigen Minuten mit dem Auto erreichbar.Einkaufszentren in Torrevieja und Orihuela Costa - 15 Autominuten entfernt.
Eine einmalige Gelegenheit fur Investition oder WohnsitzOb als standiger Wohnsitz, Ferienhaus oder Anlageobjekt, diese neuen Bungalows in La Finca Golf bieten eine perfekte Kombination aus Design, Lage und Lebensqualitat an der Costa Blanca.
Kontaktieren Sie uns noch heute fur weitere Informationen oder um eine Besichtigung zu vereinbaren.
Betten: 3
Bad: 2
Wohnfläche: 96 m2
Details
| Typ | Zu verkaufen |
| Status | Neubau |
| Anzahl Räume | 3 |
| Anzahl Badezimmer | 2 |
| Quadratmeter | 96 m2 |
| Vom Eigentümer |
Most popular
|
PREMIUM
|
|
PREMIUM
|
|
PREMIUM
|
|
REDUCED PRICE
|
|
|
|








