Villa mit 3 betten und 3 bad in Ciudad Quesada, Alicante
Neubauvilla in Rojales – Modernes Design und erstklassige Lage
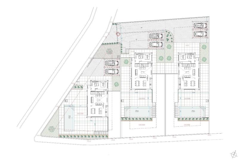
Entdecken Sie diese atemberaubende Neubauvilla in Ciudad Quesada, Rojales, die mit einer perfekten Balance aus Stil, Komfort und Funktionalitat gestaltet wurde. Umgeben von Natur und in der Nahe aller wichtigen Dienstleistungen ist dieses Haus die ideale Wahl fur alle, die ein hochwertiges Leben im Herzen der Costa Blanca suchen.
Großzugiger Grundriss mit hochwertiger Ausstattung
Diese Villa wurde sorgfaltig entworfen, um viel Tageslicht und offene Raume zu schaffen. Sie umfasst:
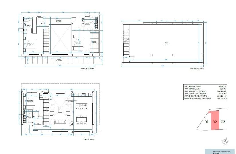
Ein großes Untergeschoss mit ausgezeichneter Beluftung und Tageslicht, ideal fur verschiedene Nutzungen.
Erdgeschoss mit einem Wohnzimmer mit doppelter Deckenhohe, offener Kuche mit Kochinsel, einem Schlafzimmer und einem Badezimmer.
Obergeschoss mit zwei Schlafzimmern mit eigenem Bad, jedes mit Zugang zu privaten Terrassen.
Die Villa bietet außerdem einen privaten 9 x 3,5 m großen Swimmingpool, einen angelegten Garten und mehrere Terrassen zum Entspannen im Freien.
Hochwertige Ausstattung und moderner Komfort
Diese Immobilie wurde mit hochwertigen Materialien gebaut und ist ausgestattet mit:
Komplett moblierten Badezimmern mit Spiegeln
Klimaanlage
Fußbodenheizung in den Badezimmern
Aerothermischem Warmwassersystem
Parkplatz fur mehrere Fahrzeuge
Erstklassige Lage in Rojales
Diese Villa liegt in der charmanten Stadt Rojales und in der Nahe aller wichtigen Dienstleistungen wie Supermarkte, Apotheken, Banken, Restaurants und Naturparks. Nur 10 Minuten vom La Marquesa Golf entfernt, einem der renommiertesten Golfplatze an der Costa Blanca, konnen die Bewohner ein erstklassiges Golferlebnis inmitten von Tradition und Qualitat genießen.
Hervorragende Anbindung und Sehenswurdigkeiten in der Nahe
Rojales ist strategisch gunstig gelegen und bietet eine hervorragende Verkehrsanbindung:
La Marquesa Golf – 3 km
Strande von Guardamar del Segura – 8 km
Torrevieja – 12 km
Flughafen Alicante – 40 km
Flughafen Murcia – 55 km
Daruber hinaus gewahrleisten die Autobahnen N-332 und AP-7 eine schnelle Anbindung an nahegelegene Stadte, Einkaufszentren, Yachthafen und kulturelle Sehenswurdigkeiten.
Machen Sie Rojales zu Ihrem neuen Zuhause
Ob Sie einen dauerhaften Wohnsitz, einen Ruckzugsort fur den Urlaub oder eine sichere Investition suchen, diese neu gebaute Villa in Ciudad Quesada bietet Ihnen alles, was Sie fur einen mediterranen Lebensstil benotigen. Kontaktieren Sie uns noch heute fur weitere Informationen und um einen privaten Besichtigungstermin zu vereinbaren.
Betten: 3
Bad: 3
Wohnfläche: 284 m2
Parzelle: 557 m2
Details
| Typ | Zu verkaufen |
| Status | Neubau |
| Anzahl Räume | 3 |
| Anzahl Badezimmer | 3 |
| Quadratmeter | 284 m2 |
| Quadratmeter (insgesamt) | 557 m2 |
| Vom Eigentümer |
Most popular
|
|
|
PREMIUM
|
|
|
PREMIUM
|
|
|
REDUCED PRICE
|
|
|
|
|
|
REDUCED PRICE
|













