Apartment mit 2 betten und 2 bad in Torrevieja, Alicante
Neubau-Wohnungen in Los Balcones, Torrevieja
Moderne Wohnungen in einer erstklassigen WohngegendEntdecken Sie diesen attraktiven Neubau-Wohnkomplex in Los Balcones, einem der beliebtesten und etabliertesten Viertel am Stadtrand von Torrevieja. In einer ruhigen Umgebung mit ausgezeichneter Anbindung an alle wichtigen Dienstleistungen gelegen, befindet sich diese Wohnanlage nur 4 km von den Sandstranden der Costa Blanca entfernt. Los Balcones ist bekannt fur seine entspannte Atmosphare, breite Straßen, Grunflachen und die Nahe zu Krankenhausern, Supermarkten, Restaurants und Einkaufszentren, was es ideal fur das ganze Jahr oder als Ferienwohnsitz macht.
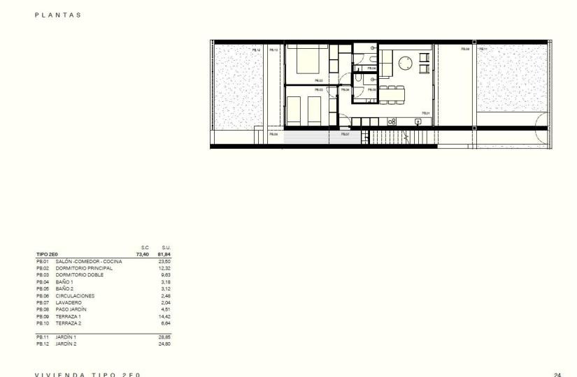
Moderne Wohnungen mit privaten AußenbereichenDer Komplex besteht aus 52 modernen Wohnungen auf einer Gesamtflache von 6700 m2. Jede Immobilie verfugt uber einen privaten Parkplatz und einen Abstellraum in der Tiefgarage. Die Wohnungen verfugen uber 2 oder 3 Schlafzimmer und 2 Badezimmer, eines davon en suite.
Kaufer konnen zwischen Wohnungen im Erdgeschoss mit privatem Garten oder Wohnungen in den oberen Etagen mit einer großzugigen Terrasse und einem privaten Solarium wahlen. Diese Grundrisse sind so gestaltet, dass sie das naturliche Licht maximieren und komfortable Wohnraume im Innen- und Außenbereich bieten, um das mediterrane Klima das ganze Jahr uber genießen zu konnen.
Gemeinschaftsbereiche zum EntspannenDas Projekt ist in vier Blocke unterteilt, die einen großen zentralen Gemeinschaftsbereich umgeben. Dieses grune Herzstuck der Anlage verfugt uber einen Swimmingpool mit einem eigenen Kinderbereich und wunderschon angelegten Garten. Diese Gemeinschaftsbereiche sind ideal zum Entspannen, fur geselliges Beisammensein und fur Familienzeit in einer sicheren und freundlichen Umgebung.
Hochwertige Ausstattung und energieeffizientes DesignJede Wohnung wurde nach modernen Standards gebaut und verfugt uber eine vorinstallierte Klimaanlage, ein aerothermisches Warmwassersystem fur verbesserte Energieeffizienz, Außenbeleuchtung und doppelt verglaste Außenfenster. Die Kuchen sind komplett ausgestattet und bieten einen funktionalen und stilvollen Raum fur das tagliche Leben.
Diese Merkmale sorgen fur einen hohen Komfort, geringen Wartungsaufwand und reduzierten Energieverbrauch, wodurch die Wohnungen sowohl praktisch als auch nachhaltig sind.
Ausgezeichnete Lage in der Nahe von Stranden und GolfplatzenLos Balcones bietet eine strategisch gunstige Lage in der Nahe vieler Sehenswurdigkeiten. Die Strande von Torrevieja sind etwa 4 km entfernt. Mehrere renommierte Golfplatze wie Villamartin Golf, Las Ramblas Golf und Campoamor Golf sind innerhalb von 10 bis 15 km zu erreichen. Das Universitatskrankenhaus von Torrevieja ist weniger als 2 km entfernt, was fur zusatzlichen Komfort und Sicherheit sorgt.
Das Stadtzentrum von Torrevieja ist etwa 5 km entfernt und mit Los Balcones durch eine Busverbindung verbunden. Dort finden Sie eine große Auswahl an Geschaften, Restaurants, kulturellen Einrichtungen und einen lebhaften Yachthafen. Der internationale Flughafen Alicante ist etwa 42 km entfernt und bietet gute internationale Verbindungen. Der Hafen von Torrevieja ist etwa 6 km entfernt.
Ideal zum Wohnen oder als InvestitionMit seinem modernen Design, den ausgezeichneten Gemeinschaftsbereichen und der erstklassigen Lage in der Nahe von Stranden, Golfplatzen und Dienstleistungen eignet sich dieser neue Wohnkomplex in Los Balcones Torrevieja perfekt als Dauerwohnsitz, Ferienhaus oder Investitionsmoglichkeit.
Kontaktieren Sie uns noch heute, um weitere Informationen zu erhalten oder eine Besichtigung dieser neu gebauten Apartments in Los Balcones, Torrevieja, zu vereinbaren.
Betten: 2
Bad: 2
Wohnfläche: 81 m2
Parzelle: 53 m2
Details
| Typ | Zu verkaufen |
| Status | Neubau |
| Anzahl Räume | 2 |
| Anzahl Badezimmer | 2 |
| Quadratmeter | 81 m2 |
| Quadratmeter (insgesamt) | 53 m2 |
| Vom Eigentümer |
Most popular
|
PREMIUM
|
|
PREMIUM
|
|
|
PREMIUM
|
|
REDUCED PRICE
|
|
|
|
|
|











